Wystawiaj za darmo Logowanie Rejestracja

Masz konto na Facebooku? Jeśli chcesz pomóc w rozwoju darmowego serwisu ogłoszeniowego możesz
udostępnić Laszczak.pl oraz obserwować/polubić nasz profil FB - dziękujemy!

Do wnajęcia lokal W Widawie

Cena: 2 400 zł / miesiąc

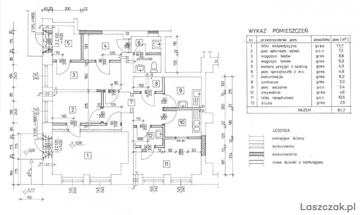
Do wynajęcia lokal handlowo-usługowy z zapleczem magazynowym i socjalnym o pow. 81,20 m.kw. położny w centrum Widawy (pow. łaski) przy ul. Sieradzkiej 7.

Przez ostatnie lata lokal wykorzystywany był na potrzeby prowadzenia apteki.

Położony jest na parterze budynku w którym FUNKCJONUJE PRZYCHODNIA LEKARSKA POLIMED.

W dotychczasowym sposobie użytkowania lokalu pomieszczenia wykorzystywane były na:

·         Salę sprzedażową – 17,70 m.kw.

·         Pomieszczenie administracyjne – 7,2 m.kw.

·         Magazyn 1 – 8,9 m.kw.

·         Magazyn 5,3 m.kw.

·         Szatnia – 4,3 m.kw.

·         Pom gosp. + WC – 4,5 m.kw.

·         Komunikacja – 8,2 m.kw.

·         Archiwum – 2,0 m.kw.

·         Pom. socjalne – 5,40 m.kw.

·         Zmywalnia – 4,5 m.kw.

·         Izba recepturowa 10,5 m.kw.

·         Śluza 2,5 m.kw.


Lokal wyposażony jest w instalację wodną, kanalizacyjną, elektryczną i alarmową.

W lokalu ogrzewanie olejowe.


Istnieje możliwość funkcjonalnego dostosowania pomieszczeń do nowej działalności.

Dogodny dostęp do miejsc parkingowych.

W najbliższym otoczeniu Urząd Gminy, bank, poczta, apteka i przychodnia zdrowia.

Czynsz na poziomie 2 400 zł netto.

Proponowana inwestycja charakteryzuje się doskonałą lokalizacją, świetnym otoczeniem biznesowym.

 

Zapraszamy do osobistego zapoznania się z naszą ofertą.



Skorzystaj z naszej ponad 10-letniej znajomości lokalnego rynku nieruchomości oraz doświadczenia naszych partnerów kredytowych i ubezpieczeniowych. Razem znajdziemy dla Ciebie najkorzystniejsze oferty na rynku.

Czy to może to być poszukiwane prze Ciebie mieszkanie? By to sprawdzić wystarczyć sięgnąć po telefon i umówić się na prezentację.


Doradca prowadzący ofertę:

Wioleta Piotrowska
kom. 502 666 060
tel. 43 827 50 50

_____________________________

PIOTROWSKA NIERUCHOMOŚCI Q

ul. Jana Pawła II 84J, 98-200 Sieradz
(budynek BUMY, obok Galerii Sieradzkiej)

e-mail: biuro@piotrowskanieruchomosci.pl
www.piotrowskanieruchomosci.pl

Nie tego szukasz? Przejrzyj inne oferty z tej kategorii (Usługi i WynajemNieruchomościWynajem lokali użytkowych). Możesz też zawsze przejść na stronę główną lub skorzystać z wyszukiwarki.

Ostatnie zmiany: 28.07.2025 13:16
Wygasa za 30 dni
Rozpoczęcie: 08.07.2025, 13:20, zakończenie: 12.11.2025, 12:14

Oferta jest już nieaktualna? Być może zawiera nieprawidłowo oznaczoną lokalizację, błędny numer telefonu czy w inny sposób narusza regulamin? Zgłoś nam ten problem - oferta zostanie sprawdzona w pierwszej kolejności!


PIOTROWSKA

 502 [pokaż]

Lokalizacja

  • Widawa (gmina Widawa)